Egyedi, tudatosan formatervezett prémium szaunagyártás és kivitelezés Balatonkenese

Egyedi tervezésű privát szaunák
Az egyedi design nemcsak tükrözi, hanem meg is határozza az életminőségünket. Az igényesen és tudatosan tervezett belső terek használhatósága mellett szépséget visz a hétköznapok világába.
Az egyedi tervezésű beltéri szauna, kültéri szaunaház, otthoni wellness formavilága többletjelentésével értékessé teszi környezetünket,mindennapjainkat.
A design mérnöki megoldások nélkül mit sem ér, mi ezt is biztosítjuk.

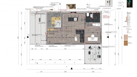
Az egyedi tervezés folyamata
Minden esetben egy átfogó, körültekintő, mindenre kiterjedő beszélgetéssel indul a wellness tervezés és építés. Ön elmondja nekünk az egyedi elképzeléseit, vágyait, mi pedig megvalósítjuk azokat egy 2 ill. 3 dimenziós tervben. Az egyedi tervezés során figyelembe vesszük a helyszínt, az elképzelt formavilágot, a választott wellness funkciókat és az Ön életvitelét.
Az iSauna Design Kft. Szauna Manufaktúra tudatos formatervezéssel, egyedi 2D-3D tervezéssel, magas fokú precizitással, speciális megoldásokkal és exkluzív kivitelezéssel segíti Önt abban, hogy álmai szauna kabinja mindennapi szolgálatában álljon hosszú évekenkeresztül.
Néhány hasznos információ:
- Kötelezettségmentes gyárlátogatás
- Magyar tulajdonú családi manufaktúra egészségre specializálódva
- Egyedi alumínium nyílászárók, személyreszabhatóan RAL színben választható kerettel
- Egyedi PVC nyílászárók hőszigetelt, edzett üvegezéssel, személyreszabhatóan RAL színben választható kerettel
- Egyedi korcolt bádogozás, személyreszabhatóan RAL színben választhatóan
- Munkafázisok rögzítése és küldése, személyes megtekintési lehetőség
- Átlátható ajánlatok személyesen és digitálissan
és számos egyéb érv és hasznos szolgáltatás.
Innováció az egyedi szauna világban
Meghatározó értékeink – többek között termékeink és szolgáltatásaink kompromisszummentes minősége – üzleti filozófiánk stabil alapkövét jelentik.
Az innováció úttörőjeként ugyanakkor fontosnak tartjuk azokat a változtatásokat is, melyek ügyfeleink igényeihez igazodva hozzájárulnak az iSauna élmény tökéletességéhez.
„Bármihez, amit megtehetsz, vagy megálmodsz, fogj hozzá! A merészségben zsenialitás, erő és varázslat rejlik.” (Goethe)



