Dunaszeg,
Prémium tükör üveg szaunacsalád

loading
Tükör szauna
  • Tükör szauna
  • Kültéri szauna
  • Tükör szauna
  • Szauna Pergola tér
  • Panoráma szauna
  • Téli élmény szauna
  • Szauna esti hangulat
  • Mirror Lounge
  • Trópusi pihenés szaunázás
  • Tóparti nyugalom szauna
  • Kerti wellness tér
  • Alpesi csend szauna
  • Mirror Zen

Amikor a tükör üveg szauna az élet ritmusához igazodik

 

Amikor a tükör üveg szaunacsalád koncepciója megszületett, nem egy újabb látványos wellness elemet akartunk tervezni. Egyetlen kérdés vezetett bennünket az első gondolatoktól kezdve:

miképp válhat a wellness a mindennapok természetes részévé, nem alkalommá, hanem állapottá?

Az iSauna Design Kft. csapataként több mint két évtizede dolgozunk azon, hogy a szauna ne elkülönülő funkció legyen, hanem egy nyugodt, védett tér, amely lelassít és kizárja a külvilág zaját. A tükör üveg szauna nappal beleolvad a környezetébe, este pedig meghitt belső világot teremt. Egy helyet, ahol nem kell sietni, megfelelni vagy alkalmazkodni.

Ez a tér nem hivalkodik. Csendesen van jelen, és éppen ettől válik valódi értékké az életminőségben.

 

A szauna letisztult esszenciája

A Mirror Zen a finn szaunázás letisztultabb gondolatát hordozza magában. Nem törekszik feltűnésre, nem akar többet mutatni annál, ami valóban számít. Egy nyugodt tér, ahol a meleg, a fa és a fény együttese segít lelassulni, kizárni a külvilágot, és visszatalálni a saját ritmusunkhoz.

A belső kialakítás tudatosan egyszerű. A természetes faanyagok, az egyenletes hőérzet és a finoman rejtett világítás mind azt szolgálják, hogy a szaunázás ne teljesítmény, hanem rituálé legyen. A zenei előkészítés diszkréten simul bele a térbe, lehetőséget adva arra, hogy mindenki a saját hangulatához igazítsa az élményt.

A Mirror Zen nem csupán egy kültéri szauna, hanem egy védett, csendes hely a mindennapokra. Egy tér, amely nem magyarázza túl önmagát, mégis minden alkalommal emlékeztet arra, milyen jó megállni egy pillanatra.

 

Wellness ház, ami már élettéré válik

A Mirror Lounge azoknak készült, akik a szaunát nem egyetlen funkciónak tekintik, hanem egy hosszabb, megélhető folyamat részének. Egy tér, ahol nem kell sietni a következő lépéshez, mert minden adott a megérkezéshez és a maradáshoz is.

Ebben a kialakításban a szauna köré szerveződik minden. A csendes belépő, a diszkréten elhelyezett WC és zuhany természetes módon kapcsolódik a szaunázás ritmusához, megszakítás nélkül. A terek egymásból következnek, nem határokat húznak, hanem lehetőségeket adnak a lassításra és az elmélyülésre.

A Mirror Lounge nem hangsúlyozza a komfortot, csak egyszerűen jelen van. Érezhető a stabilitás, a kiegyensúlyozottság és az a fajta nyugalom, amely hosszabb időtöltésre is alkalmassá teszi a teret. Itt a wellness már nem alkalom, hanem az élet természetes része. Egy hely, ahová jó visszatérni, és ahol mindig maradni szeretnénk még egy kicsit.

 

A szauna ami kilép a térbe - Mirror Nature

A Mirror Nature a tükör üveg szauna gondolatát tovább nyitja a környezet felé. Ebben a kialakításban a szaunázás nem zárt élmény, hanem természetes kapcsolat a belső nyugalom és a külvilág között. A szaunához közvetlenül csatlakozó pergola olyan fedett, mégis nyitott teret hoz létre, ahol a pihenés szinte észrevétlenül folytatódik.

A pergola alatt a megállás és a jelenlét kap hangsúlyt. Egy hely, ahol a szaunából kilépve nem kell azonnal visszatérni a mindennapokhoz, hanem marad idő lélegezni, figyelni, lelassulni. A tér védett, mégsem elszigetelt, így az évszakok változása, a fények és a természet közelsége végig része marad az élménynek.

A Mirror Nature egész évben használható, anélkül, hogy alkalmazkodásra kényszerítene. A pergola nem kiegészítő elem, hanem a szauna szerves része, amely tovább erősíti a kültéri wellness élményt. Egy olyan megoldás, ahol a szauna nem lezár, hanem megnyit a tér, a csend és a természet felé.

 

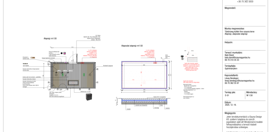
Egyedi szaunagyártás iSauna Design szemlélettel

Minden általunk tervezett tükör üveg szauna egyedi gyártásban készül. Nem késztermékeket kínálunk, hanem személyre szabott prémium szauna megoldásokat, ahol az érzelmi élmény és a műszaki megbízhatóság egyensúlyban van. Ez a referencia is jól mutatja, hogy egy prémium kültéri szauna nem csupán design elem, hanem tudatos befektetés az életminőségbe, a nyugalomba és a hosszú távú értékteremtésbe.

 

A wellness akkor válik valódi értékké, amikor személyessé tesszük.
Ha szeretné, hogy a tükör üveg szauna valóban az Ön életéhez, környezetéhez és ritmusához igazodjon, beszélgessünk róla nyugodt környezetben.

Egyeztessen velünk egy személyes konzultációt!

Egyedi szaunaelképzelése van?

Lépjen kapcsolatba szakembereinkkel:

■ Szauna manufaktúra - Dunaszeg

Balázs Csaba - Szauna wellness szakértő

+36 70 362 5830
E-mail: info@szaunagyartas.hu

Online szauna felmérés

■ Illetve elküldheti elérhetőségeit az alábbi táblázat kitöltésével,
majd kollégánk visszahívja Önt!

Küldés

Szauna wellness spa

Ön megálmodja, mi megtervezzük és kivitelezzük akár otthonra akár szállodákba.

 

 

 

 

Himalája sószoba

Belsőépítészeti megoldások himalája só felhasználásával. Gyógyuljon a sóterápiával!

Kültéri szaunaház

Prémium kültéri szaunák, wellness szaunaházak gyártása, építése, kivitelezése.

Belsőépítészet lakberendezés

Exkluzív belsőépítészeti tervezés és kivitelezés egy kézben.

Egyedi szauna építés

Egyedi megoldások igényes ügyfeleinknek a szauna építésben.

hu de en at sk cz
Kosár tartalma
0